3d Floorplans

Screen Shot 2020-08-06 at 12.56.17 PM.png

Objective

To transform 2-dimensional floorplans into 3d models for a local architect, using Maxon Cinema 4D.

Unit Type 1A - Handicap Accessible Bedrm 2.jpg

Development

Using a scale calculator, I figured out the ratios of the 2 dimensional floorplan to a full scale 3D model. I then modeled all the furniture, added textures, and repeated this process for 6 more floorplans.

Screen Shot 2020-08-06 at 1.01.50 PM.png

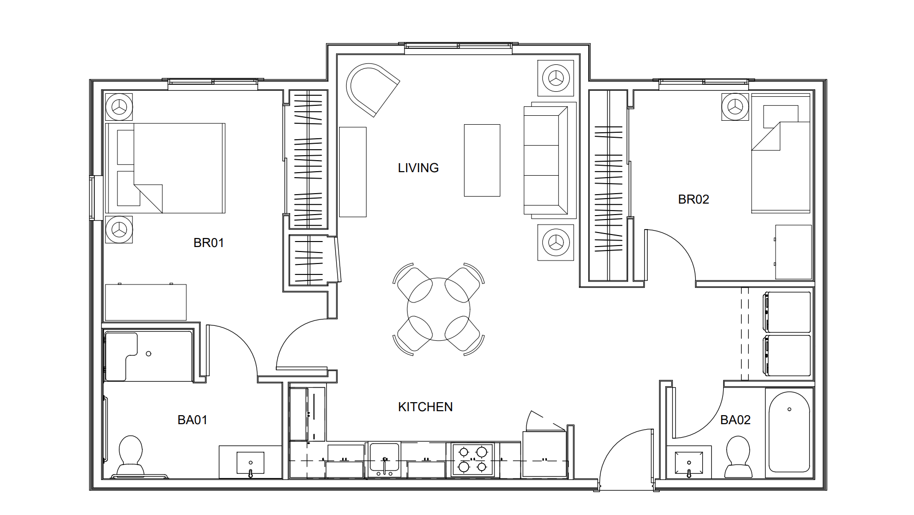
Final Solution

This is an example of one of the seven finished 3D floorplans.

floorplan-result-website.png

Presentation

I sent pdfs of each 3D floorplan in this format to the client. These pdfs show close-ups of each area in the apartment, as well as a birds eye view of the entire apartment.

Previous
Previous

Spring Catalog

Next
Next

Enneagram Stickers